Architektur

SBB Betriebswehr Rapperswil

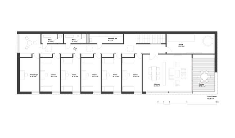
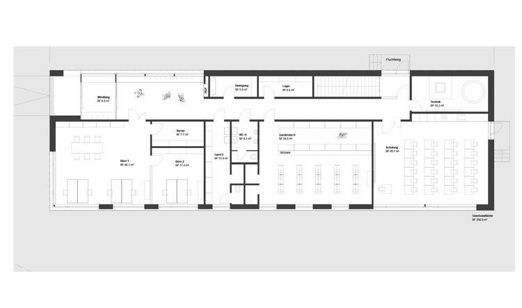
Der Neubau zeichnet sich durch seine funktionale und flexible Struktur aus, welche bei Bedarf auch auf veränderte Raumbedürfnisse angepasst werden kann. Im Erdgeschoss sind Büro- Schulungs- und Garderobenräume und im Obergeschoss sechs Doppelzimmern mit Aufenthaltsraum auf einer Grundfläche von rund 600 m2 untergebracht. Damit können im Bedarfsfall bis zu 12 Mitarbeiter der Betriebswehr auf dem Depotgelände übernachten. Die zentrale Lage im Osten des Depotareals ermöglicht kurze Wege zur nahe gelegenen Lokremise, wo die Lösch- und Rettungsfahrzeuge der Betriebswehr stationiert sind. 

Das Gebäude ist als reiner Holzbau konzipiert, wobei ein Grossteil der Wand- und Deckenelemente vorgefertigt auf die Baustelle geliefert wurde. Diese Konstruktionsweise drängte sich auf, da sich der Bauplatz mitten im Gleisfeld befindet und nur mit Schienenfahrzeugen erreicht werden kann. Einzig die Bodenplatte ist in Stahlbeton ausgeführt, welche aufgrund des schlechten Baugrundes auf Mikropfähle abgestellt werden musste. 

Ein grosser Stellenwert wurde bei der Ausführung auf eine optimierte Gebäudetechnik und eine Minimierung des Energiebedarfs gelegt. Dank den hochwertig gedämmten Aussenwand- und Dachelementen und der kontrollierten Wohnungslüftung erfüllt der Neubau den Minergie-Standard.Die benötigte Wärmeleistung wird über eine Erdsonden-Wärmepumpe erzeugt, welche mit einer auf dem Dach platzierten Solaranlage ergänzt wird. Um im Sommer Außenluft für die Lüftungsanlage zu kühlen, wurde ein Plattenwärmetauscher zur Systemtrennung installiert. Das Warmwasser wird mittels Sonnenkollektoren aufbereitet. 

Nach nur acht Monaten Bauzeit konnte der Neubau einer zufriedenen Bauherrschaft übergeben werden. Entstanden ist ein komfortabler Zweckbau, der die Bedürfnisse eines 24-Stunden Betriebs in optimaler Weise erfüllt.