Architektur

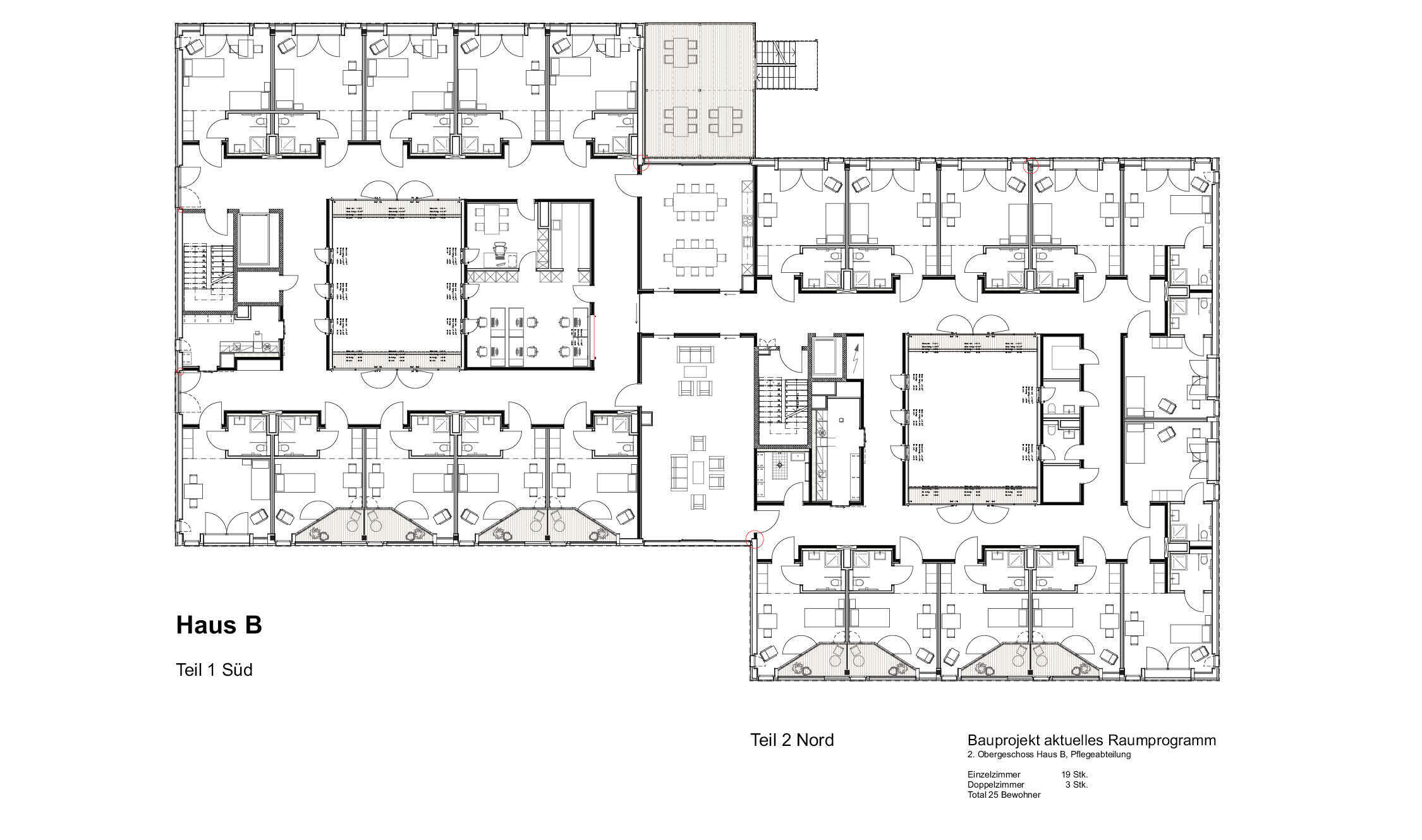
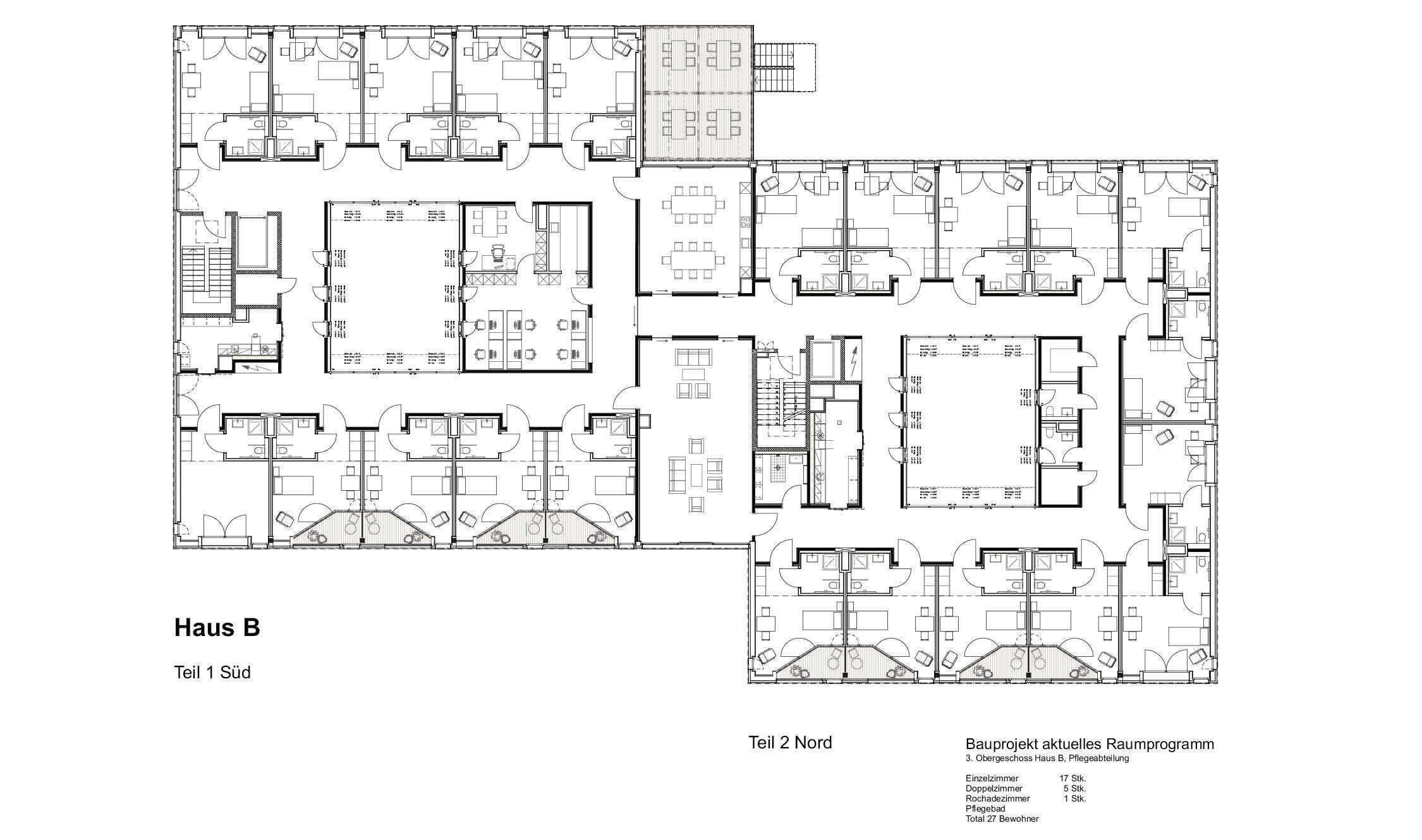
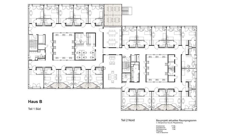
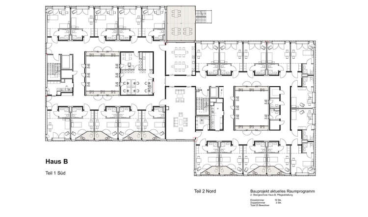
Alters- und Pflegezentrum Loogarten Esslingen

Nach dreijähriger Planungs- und Bauzeit ist die Aufstockung des APZ Loogarten abgeschlossen und die zwei neuen Geschosse konnten bezogen werden. Zurzeit werden in den bestehenden Geschossen noch kleinere Umbauarbeiten vorgenommen, danach ziehen auch die beiden Abteilungen aus Haus A ins Gebäude B um. 

Eine mögliche Aufstockung der APZ wurde beim Bau des Hauses B bereits berücksichtigt. Allerdings wäre in Massivbauweise eine Erweiterung um nur ein Geschoss möglich gewesen, ohne den Bestand statisch zu verstärken. Der Entscheid, die neuen Geschosse in Holzbauweise, mit regionalem Holz zu bauen, war deshalb schnell gefällt. 

Die Holzbauweise brachte mehrere Vorteile wie eine kürzere Bauzeit, weniger Lärmbelastung und kleinere Auflasten. 

Besondere Aufmerksamkeit verdienen die Massivholzdecken welche nach der neuen TS3 Technologie, entwickelt von Timbatec in Zusammenarbeit mit der Berner Fachhochschule und der ETH Zürich, gebaut wurden. Das System ermöglicht grosse Spannweiten ohne Stützen und Unterzüge. Und erlaubt so eine grosse Flexibilität in der Raumgestaltung. 

Für die Aufstockung wurden ca. 2000m3 Holz aus den Wäldern (Egg, Küsnacht, Herrliberg und Erlenbach) rund um den Pfannenstiel verbaut.   

Der Bau war in mancher Hinsicht eine Herausforderung. Die neuen Geschosse wurden während laufendem Betrieb gebaut, dies hat zu zusätzlichen Koordinationssitzungen und Absprachen geführt. 

Nicht ganz einfach war die Koordination des Überganges vom Bestand zum Neubau (Abstimmung der Zimmermannarbeiten, Treppenhaus) sowie die Erfüllung der Anforderungen bezüglich Schall- und Brandschutzes. 

Dank den vielen beteiligten Fachplanern und Unternehmer konnten die Schwierigkeiten ohne grosse Probleme gemeistert werden.